Hopp til hovedinnhold

Vi startet opp arbeidet med å pusse opp og omdanne Hulderhaugen til nytt museum i 2019 og kunne åpne det i 2022. Her kan du lese om oppussingen.

Rydding av diverse ting og tang

Det første vi startet opp med i doktorboligen, var å rydde diverse ting og tang, som vi ikke ønsket å beholde.

  • 1/3
  • 2/3
  • 3/3

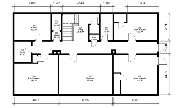
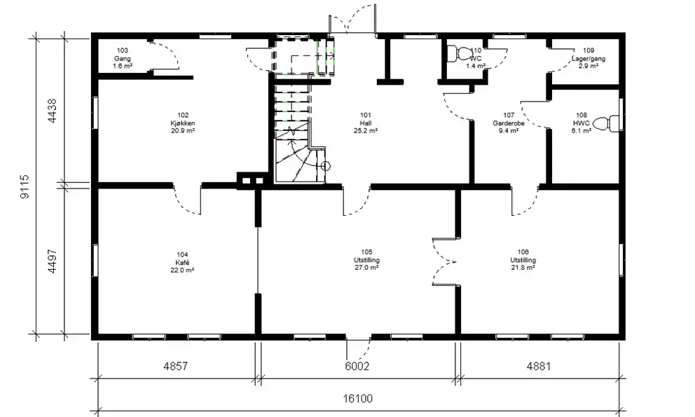
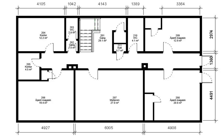
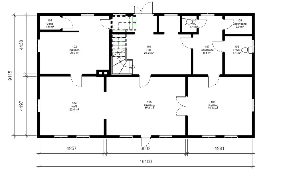
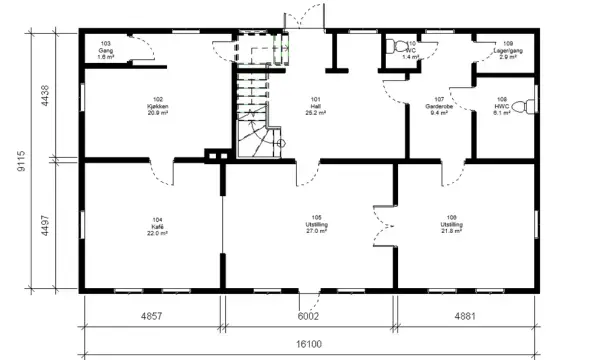
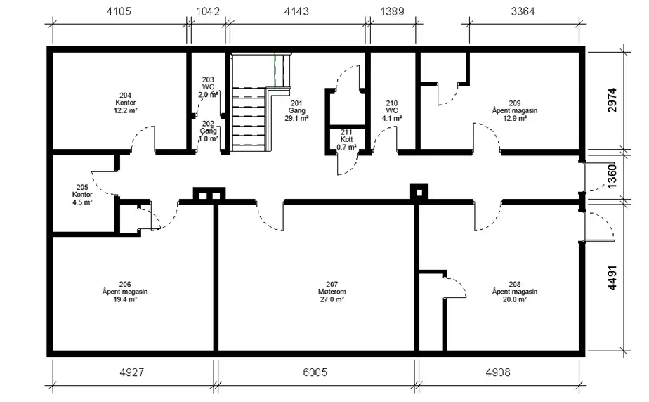
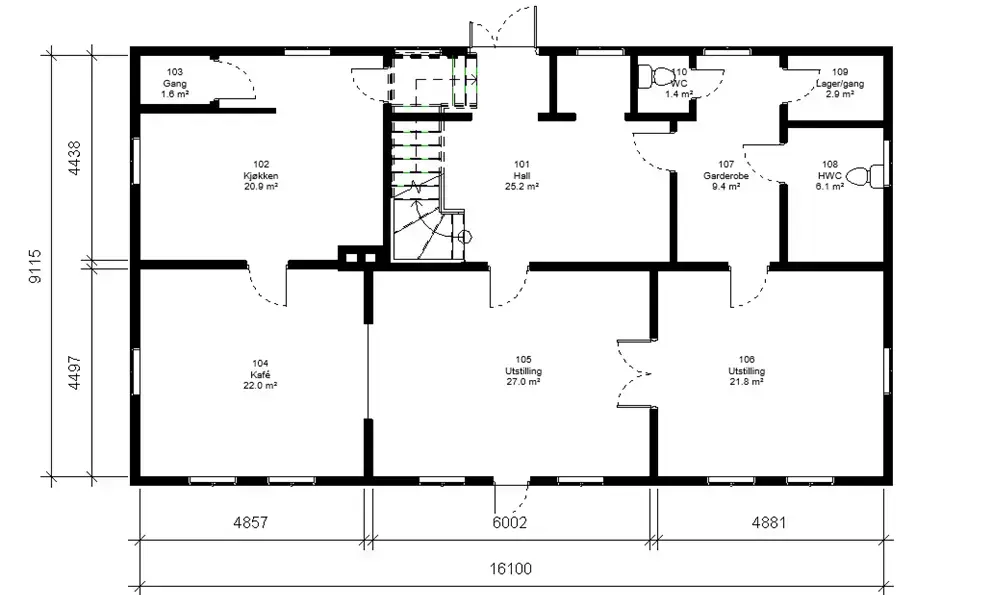
Detaljerte tegninger av alle rom

Konservator Stein Domås fra MiA utarbeidet en oppussingsplan med fargeplan og laget detaljerte tegninger over alle rom i Doktorboligen.

  • 1/6
  • 2/6
  • 3/6
  • 4/6
  • 5/6
  • 6/6

Slik så museet ut før vi startet opp

Hulderhaugen består av flere hus: Doktorboligen, Drengestuen og Låven. Doktorboligen skal romme utstillingsrom, kafe, møterom og magasiner. Slik så rommene i Doktorboligen ut før vi startet opp oppussingen. Lyse og gode rom, men de trengte et malingsstrøk.

  • 1/11
  • 2/11
  • 3/11
  • 4/11
  • 5/11
  • 6/11
  • 7/11
  • 8/11
  • 9/11
  • 10/11
  • 11/11

Male, male, male.....

Det ble utarbeidet en fargeplan for malingsarbeidet inne i Doktorboligen. Tre- og murvegger i hele huset er malt. Et kjempestort arbeid for dugnadsgjengen. 

  • 1/9
  • 2/9
  • 3/9
  • 4/9
  • 5/9
  • 6/9
  • 7/9
  • 8/9
  • 9/9

Et vaskerom blir til kontor

I 2. etasje var det et vaskerom med en vaskemaskin. Vi ønsket oss et nytt kontor og med nytt gulvbelegg og veggkledning ble det riktig så fint.

11/2
11/2

Pipene repareres

Etter et kraftig regnskyll oppdaget vi at det lakk inn vann ved overgangen mellom taket og pipene. Heldigvis hadde vi flinke og modige dugnadsfolk som fikk dekket pipene midlertidig med presenninger. Profesjonell murer måtte til, så nå er pipene reparert og begge har fått nye beslag.

  • 1/5
  • 2/5
  • 3/5
  • 4/5
  • 5/5

Reparasjon av vannskadet vegg i 2. etasje

Da vinduer og vegger skulle males i møterommet i 2. etasje oppdaget, vi at veggen under vinduet var vannskadet. Da måtte panelet rives, den gamle isolasjonen tas bort og veggen gjenoppbygges. Nå er vinduene tettet og isolert rundt på riktig måte. 

  • 1/5
  • 2/5
  • 3/5
  • 4/5
  • 5/5

Vinduer restaureres og fasaden pusses opp

En stor jobb var å få fasaden på Doktorboligen fin. Vinduene trengte restaurering og nymaling. Av en eldre modell av Doktorboligen kunne vi se at huset opprinnelig hadde grønnmalte sprosser og vindusrammer. Vi tilbakefører derfor til opprinnelig fargesetting og synes det er blitt ganske så fint. 

  • 1/4
  • 2/4
  • 3/4
  • 4/4

Peisen skifter farge

Peisen i hallen var i rød murstein. Vi ønsket å integrere den bedre med husets farger og valgte å gi den en lys grå farge. Her ser dere resultatet.

19/2
19/2

Uteområdene gjøres fine

Hulderhaugen har fine uteområder med trær og hage.

Vi har fjernet mange store trær. Noen stod så nært bygningene at det hadde blitt stor mosevekst på takene. På og rundt hele eiendommen er det hugget og ryddet, så haugens silhuett igjen kommer tydelig fram.

Vi har også malt alle hagemøblene grønne. Alt blir så fint til bruk ute på nydelige sommerdager.

  • 1/4
  • 2/4
  • 3/4
  • 4/4

Fjerning av rømningsklie og oppsetting av ny rømningstrapp

Vi har tatt bort den gamle rømningsklia som var beregnet på å evakuere småbarn, da Doktorboligen var i bruk som barnehage. Nå vil Doktorboligen få besøk av både ban og voksne, og det kreves en rømningstrapp. 

Da vi først var i gang, bestemte vi oss for å male veggen før vi monterte ny rømningsveg. Vi har vasket, skrapet, reparert litt, grunnet og malt to strøk. Vi fortsetter med de tre andre veggene.

  • 1/6
  • 2/6
  • 3/6
  • 4/6
  • 5/6
  • 6/6

Kos og kaffe

Men vi jobber ikke hele tiden, vi koser oss også masse. Det er herlig å jobbe sammen, og ikke minst å dele gleden over alt vi kan få til når vi er flere.

Hvis du får lyst å bli med til å gjøre Hurdal museum til et flott sted å være, er det bare å ta kontakt. Se kontaktinfo nederst på siden. Du er velkommen! 

  • 1/3
  • 2/3
  • 3/3

Nysgjerrig på mer?

Den 28.05.2022

Tekst: Kirsten Linde, konservator NMF

Foto: Sigrid Bernhardt og Kirsten Linde/MiA.

Museum24:Portal - 2025.09.08
Grunnstilsett-versjon: 2